This property is not currently available. It may be sold or temporarily removed from the market.
Hill Street W1J
£3,250 pw
Property Summary
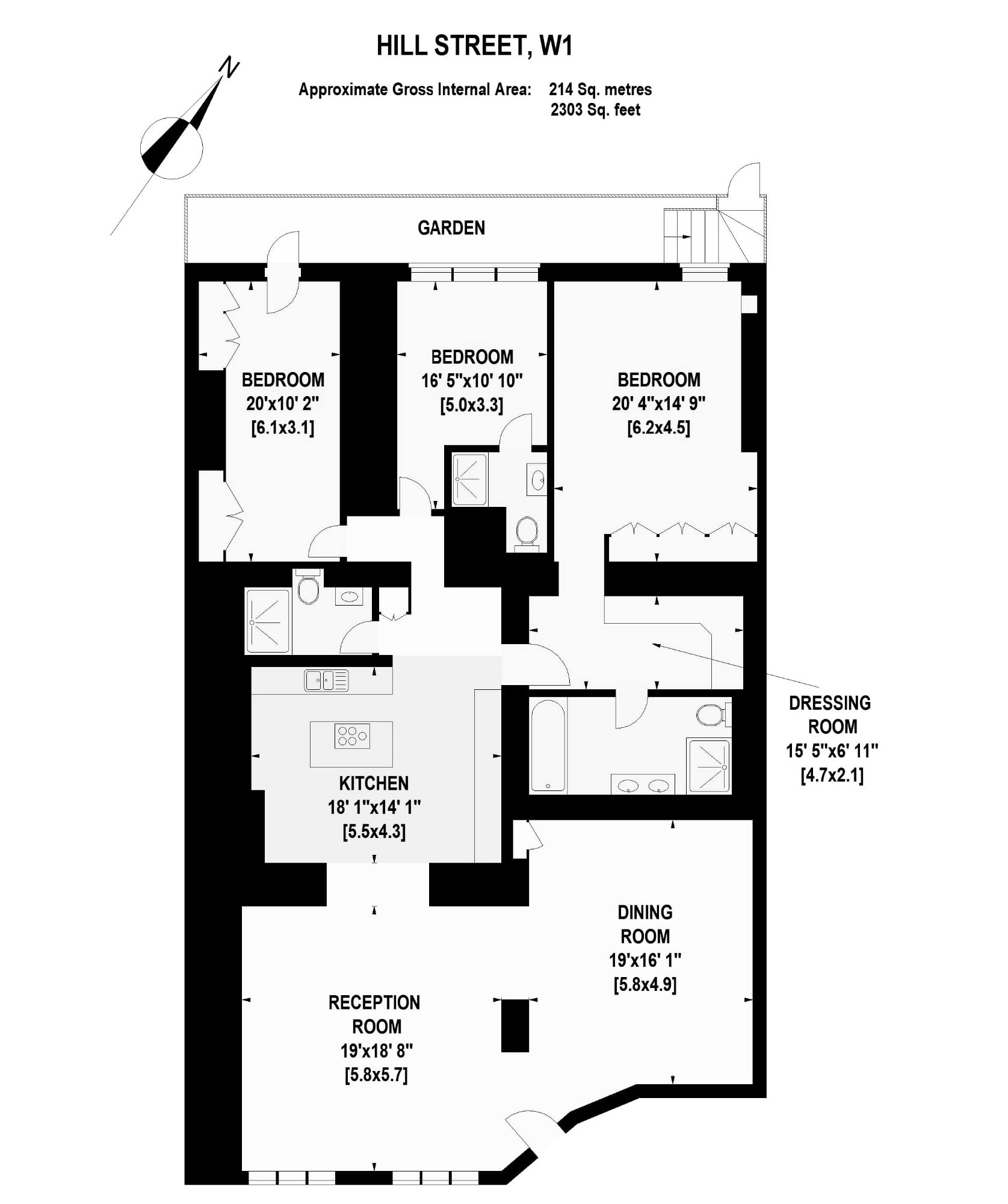
A spacious and well-proportioned ground floor apartment located within a beautiful portered building on Hill Street in Mayfair.
Full Details
A spacious and well-proportioned ground floor apartment located within a beautiful portered building on Hill Street in Mayfair. The apartment benefits from a large, bright double reception and dining room, a fully fitted kitchen with a breakfast bar and also features a master bedroom with en-suite bathroom and walk-in wardrobe and two further double bedrooms. Hill Street is a quiet residential street moments from Mount Street Gardens and Berkeley Square and benefits from excellent transport links including Bond Street and Green Park tube stations.
Disclaimer: a Director of Milton Stone has an interest in this property.































