Overview
- Updated On:
- December 7, 2025
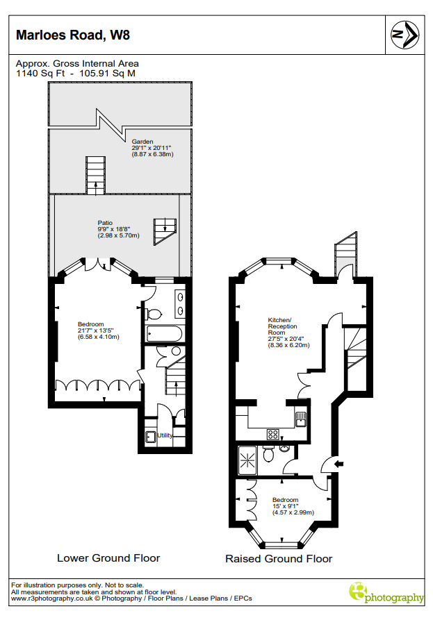
- 2 Bedrooms
An elegant and beautifully designed 2-bedroom maisonette with a stunning west facing rear garden accessed from both floors. The apartment features wooden floors, high ceilings and excellent proportions throughout.
Marloes Road is a tree-lined street just moments from Stratford Village and close to the shopping and transport facilities of Kensington High Street, Earls Court and Gloucester Road.
Tenure: Share of Freehold
Leasehold plus Share of Freehold
Documents
Property Id : 88301
Price: £ 1,795,000
Bedrooms: 2
£ 6,054.23
per month- Principal and Interest
- Property Tax
- HOA fee
£ 6,054.23












