Overview
- Updated On:
- November 17, 2025
- 1 Bedrooms
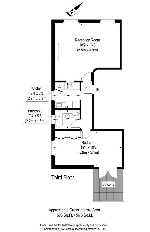
A bright, spacious and well-proportioned one bedroom apartment with a balcony in this highly sought-after Notting Hill location just moments from Hyde Park. The apartment has been finished to a high specification and features high ceilings and wood flooring. Linden Gardens is an attractive and quiet cul-de-sac moments from Notting Hill underground station, and close to the shops and restaurants or Notting Hill.
Deposit: £3,975
Holding Deposit: £795
Documents
Address: Flat 6, 97 Linden Gardens
Area: London
Zip: W2 4EX
Country: United Kingdom
Open In Google Maps Property Id : 86107
Price: £ 795 pw
Bedrooms: 1
£ 2.68
per month- Principal and Interest
- Property Tax
- HOA fee
£ 2.68
Contact Me
Similar Listings
1 Reception(s)
2 Beds
1 Baths
Contact:












